The Land Brother Logo

321 Eastern AvenueBrewer, ME 04412Price: $635,000

  • Price: $635,000
  • Est. Mortgage of $/month
  • 127 Days on Market
$
$
%
$/month over payments
Federal 30-year interest rate: 6.24% last updated on Nov 13, 2025
* All Figures are estimates. Check with your bank or proposed mortgage company for actual interest rates.
This product uses the FRED® API but is not endorsed or certified by the Federal Reserve Bank of St. Louis.
  • $635,000List Price
  • 4Bedrooms
  • 3Bathrooms
  • 6.04Acreage
  • 3,700Square Feet
Pending

Listing Tools

Listed by NextHome Experience
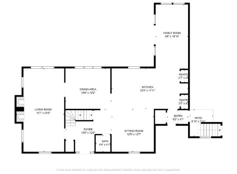
Welcome to 321 Eastern Ave in Brewer-a versatile property that blends space, functionality, and opportunity on 6 beautiful acres. As you arrive, you're greeted by a driveway flanked by mature red maple trees, leading to a stately colonial-style home. The front porch, accented with classic columns, creates a warm and inviting first impression-ideal for relaxing and taking in the peaceful surroundings. Inside, the home features 3 bedrooms, 1.5 baths, a spacious kitchen, and a large living room with a wood-burning fireplace. A cozy sitting room opens directly to a beautiful in-ground pool with a generous deck-perfect for outdoor living and entertaining. The attached 2-car garage with 16' doors provides ample space for vehicles, storage, or equipment. An added bonus is the fully equipped 1-bedroom in-law apartment with a full kitchen, allowing for flexible use such as guest accommodations, extended stays, or rental potential. Also on the property is a 36'x36' barn with overhead storage-providing endless possibilities for hobbies, workspace, or additional storage. Enjoy the privacy of 6 acres while being just minutes from shopping, dining, downtown Bangor, and Northern Light Eastern Maine Medical Center. This Brewer location combines the best of tranquility and convenience. Make your appointment today to explore everything this property has in store.

Property Details of 321 Eastern Avenue

Property Details

Interior Features

Exterior Features

Utilities and Appliances

Other Details

Map Location

Listing data is derived in whole or in part from the Maine IDX & is for consumers' personal, non commercial use only. Dimensions are approximate and not guaranteed. All data should be independently verified. ©2025 Maine Real Estate Information System, Inc. All Rights Reserved. equal opportunity housing logo   Privacy Policy

The Land Brothers participates in ©2025 Maine Listings Internet Data Exchange program, allowing us to display other Maine IDX Participants' listings. This website does not display complete listings. Certain listings of other real estate brokerage firms have been excluded. Mortgage figures are estimates. Check with your bank or proposed mortgage company for actual interest rates. This product uses the FRED® API but is not endorsed or certified by the Federal Reserve Bank of St. Louis.

Hi there! How can we help you?

Contact us using the form below or give us a call.

Send Us A Message:

I agree to receive marketing and customer service calls and text messages from The Land Brothers. To opt out, you can reply 'stop' at any time or click the unsubscribe link in the emails. Consent is not a condition of purchase. Msg/data rates may apply. Msg frequency varies. Privacy Policy.

Do not fill in this field:

This site is protected by reCAPTCHA and the Google Privacy Policy and Terms of Service apply.

Hi there! How can we help you?

Contact us using the form below or give us a call.

Send Us A Message:

Do not fill in this field:

This site is protected by reCAPTCHA and the Google Privacy Policy and Terms of Service apply.

Hi there! How can we help you?

Contact us using the form below or give us a call.

Send Us A Message:

Do not fill in this field:

This site is protected by reCAPTCHA and the Google Privacy Policy and Terms of Service apply.

Do not fill in this field:

This site is protected by reCAPTCHA and the Google Privacy Policy and Terms of Service apply.

Do not fill in this field:

This site is protected by reCAPTCHA and the Google Privacy Policy and Terms of Service apply.

Do not fill in this field:

This site is protected by reCAPTCHA and the Google Privacy Policy and Terms of Service apply.

$

Do not fill in this field:

This site is protected by reCAPTCHA and the Google Privacy Policy and Terms of Service apply.